Koll Sauna LogoPension Berlin Altenglienecke  
... Ihr Referenzbeispiel 01/9/1
 
Einbauort:     Berlin-Altenglienecke
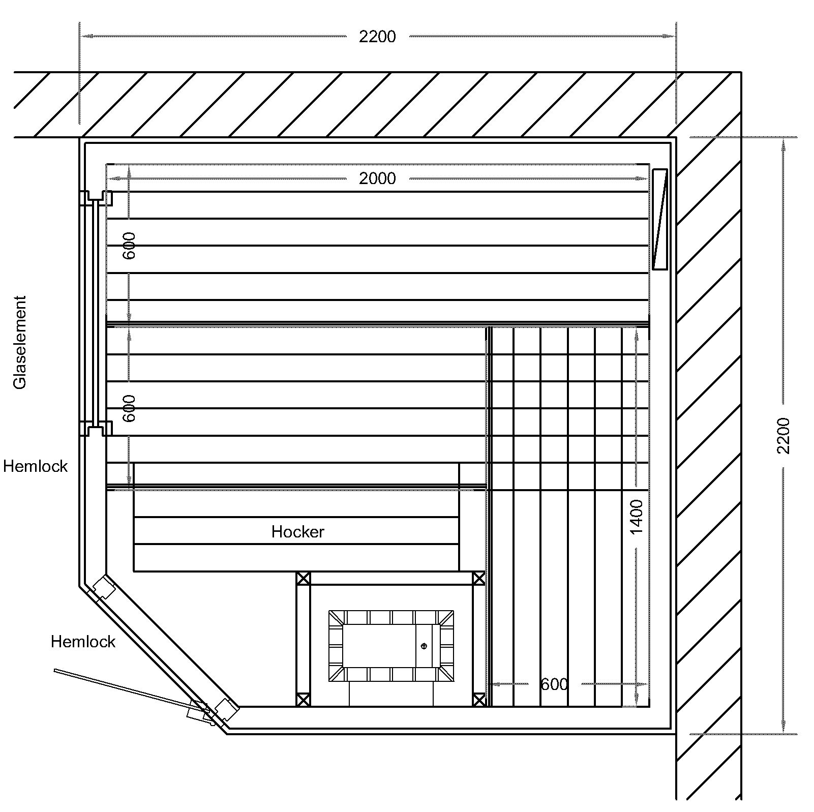
Saunatyp: Koll Exquisit Sauna 2000
Einbauzeitraum: 2001
 
Koll Exquisit Sauna Berlin Altenglienecke Bild links:

Koll Exquisit-Sauna 2000 Einrichtung verschiebbar, Ofen mit Schutzgitter,

Liegeneinrichtung aus "Deutscher Waldpappel"

Innenverkleidung und Außenverkleidung aus kanadischer Hemlock-Tanne

Bild rechts:

Ansicht der Pension von der Straße

Anschrift:

Normannenstr. 10

12524 Berlin-Altenglienecke

     Pension in Berlin Altenglieneke mit Koll Exquisit-Sauna
Bild links: 

Innenansicht rechte Sauna, Einrichtung verschiebbar, Ofen mit Schutzgitter

 
Koll-Sauna.eu Delbrück 05250/7736 München 089/41153040 Berlin 030/89372224